首頁>防爆暖通>防爆加濕/除濕/恒溫恒濕類>防爆恒溫恒濕空調機 > BHF系列防爆(bao)恒溫恒濕空調機 380V/50Hz ⅡBT4
防爆恒溫恒濕空調機規格參數 | |
---|---|
制冷消耗功率 | 11~93.5kW |
制熱量 | 5~46kW |
制熱消耗功率 | 11~93.5kW |
循環風量 | 1500~19000m3/h |
機外靜壓 | 150~400Pa |
室內/室外噪音 | 56~74dB(A) |
材質 | 碳鋼噴塑 |
輔助電加熱量 | 5~46kW |
制冷劑 | R22/R407C |
蒸發器類型 | 銅管套鋁翅片 |
冷凝器類型 | 銅管套鋁翅片 |
室內機重量 | 230~820kg |
室外機重量 | - |
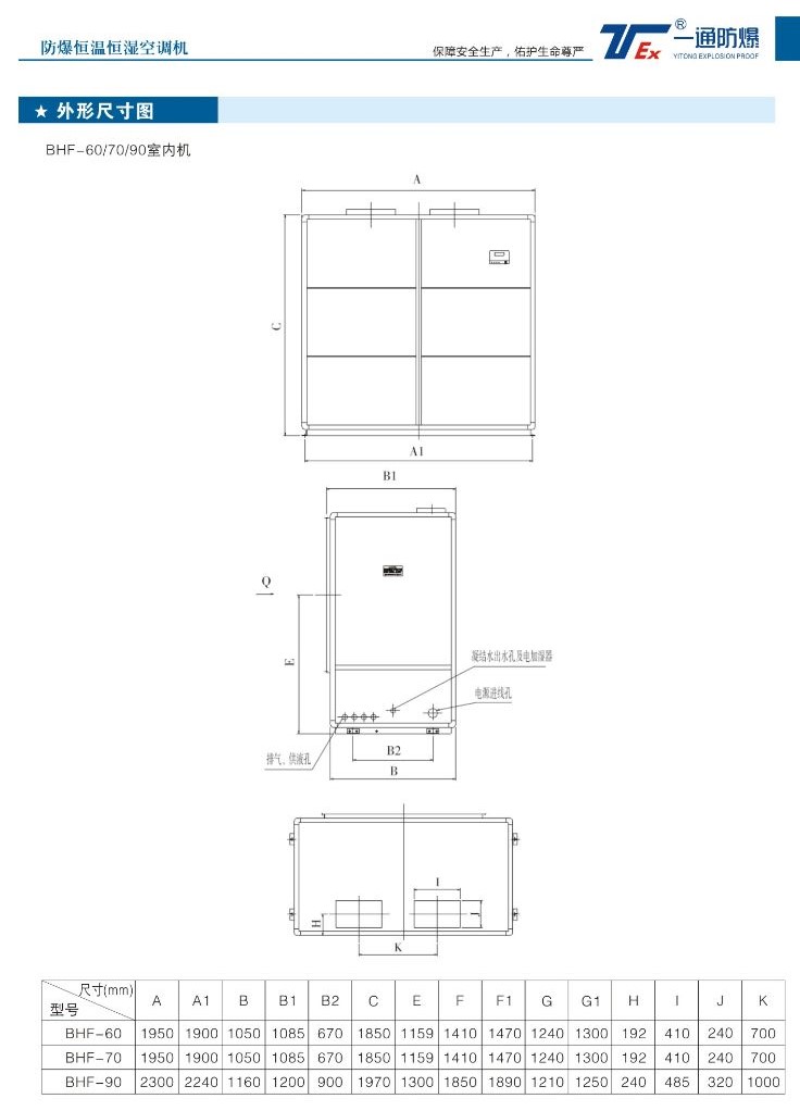
室內機外形尺寸 | 詳見外形尺寸圖 |
室外機外形尺寸 | 詳見外形尺寸圖 |
制冷量 | 7~90kW |
適用場所 | IIA,IIB |
電源 | 380V |
加濕類型 | 電熱式 |
加熱類型 | 電加熱 / 熱水加熱 / 蒸汽加熱 | 其他參數 |
產品型號 | BHF-7/9/12/25/35/45/60/70/90 |
防爆標志 | Ex d ib mb ⅡB T4 Gb |
供貨周期 | 45天 |
防爆合格證編號 | CNEx13.2847 / CNEx13.2850 |
尺寸圖 | ![]() ![]() ![]() ![]() |
違法和不良信息舉報(bao)投(tou)訴電話:0377-62377728 舉報郵箱:fbypt@bjly.net.cn